942B-S «Сайма» - проект двухэтажного дома из кирпичей, с террасой, в баварском стиле, с гаражом

Автор проекта: В. Тарасов
  • Общая площадь дома:214.8 м²
  • Площадь отапливаемых помещений:194.4 м²
Стоимость проекта:
  • Архитектурно-строительные чертежи (АС)    48 700 ₽
  • Строительный паспорт проекта    3 500 ₽
  • Разбивочный план вашего участка    7 000 ₽
  • Дополнительная копия проекта    4 000 ₽
  • При покупке проекта дома можно выбрать три бесплатных опции (проекта), посмотреть проекты)    1 ₽
  • Доставка по России бесплатно, в страны СНГ    По дог.
Стоимость, дополнительные опции только для проектов Тарасова В.А.:
  • Электронная копия в формате PDF     5 500 ₽
  • Корректировка Паспорта проекта
    (в зависимости от пожеланий)   
    По дог.
  • Корректировка конструкций дома
    (в зависимости от пожеланий)   
    По дог.
  • Разработать скрытые алюминиевые роллеты (опция, отдельный альбом - возможность уточнить у консультантов)    1 ₽
Заказать проектПоложить в мои желания
Спасибо за обращение к нам, в ближайшее время мы вам ответим
Связаться через:

Строить легче с проектом от  "АЛЬФАПЛАН" потому, что у нас подробные строительные чертежи.  Смотрите ВИДЕО, читайте на странице  Состав проекта дома.

Готовые проекты: 1. не предназначены для строительства в СЕЙСМИЧЕСКИ АКТИВНЫХ РАЙОНАХ, а фундаменты - в условиях ВЕЧНОЙ МЕРЗЛОТЫ, 2. проекты домов требуют Привязки к конкретному участку строительства (внизу страницы).

.

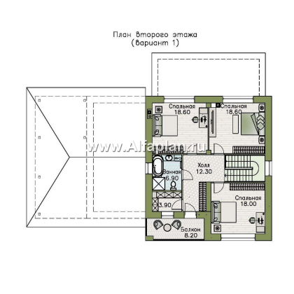
Общая площадь дома 214.8 м²
Площадь гаража 30.5 м²
Общая площадь дома, без гаража 184.3 м²

«Сайма» - проект двухэтажного дома из кирпичей, с террасой, в баварском стиле, с гаражом - технические характеристики

Тип фундамента монолитная ж/б плита
Тип наружных стен газо(пено)бетон/кирпич
Тип внутренних несущих стен газо(пено)бетон/кирпич
Тип перекрытий монолитная ж/б плита
Тип кровли битумная черепица, возможна металлочерепица
Наружная отделка стен лицевой кирпич, облицовочный камень, деревянная/искусственная вагонка
Наружная отделка цоколя облицовочный камень
Гараж Гараж на 1 авто/С гаражом-навесом/Гаражные ворота ALUTECH (реклама: ООО "Алютех-М")
Габаритные размеры дома 10.2 м x 19 м
Высота дома от уровня пола 1-го этажа 9.4 м
Высота 1-го этажа от пола до потолка 3 м
Высота 2-го этажа от пола до потолка 2.7 м
Ширина 10.2 м
Длина 19 м
Утеплитель минеральная вата
Материал окон из ПВХ профилей/Защитные роллеты ALUTECH (реклама: ООО "Алютех-М")

Варианты проекта

Описание проекта

«Сайма» - проект двухэтажного дома из кирпичей, с террасой, в баварском стиле, с гаражом

Сервис для заказчиков

  • Сервис
    для заказчиков

    Внесение изменений в проекты

    Подробнее
  • Корректировка
    конструкций

    Изменение фундамента, перекрытий, теплые полы

    Подробнее
  • Планировка
    участка

    Разбивочный план, благоустройство, озеленение

    Подробнее
  • Индивидуальное
    проектирование

    Разработка проекта по заданию Закачика

    Подробнее
  • Индивидуальный
    фасад

    Корректировка фасада по желаниям заказчика

    Подробнее

Комментарии 0

Об этом проекте ещё никто не писал.
Задай вопрос или поделись своим мнением!
Нам не всё равно

Добавить комментарий
Добавление комментария

Коллекции с этим проектом